Clinica R, Alba Iulia
Program:
Tip:
Suprafață:
Localizare:
An:
Imagini:
Echipă:
Clinică medicală în spațiu reconvertit
Spațiul inițial era complet gol. Pentru a-l transforma într-o clinică stomatologică funcțională, am parcurs un proces complex de schimbare de destinație și obținere a Autorizației de Construire. Un proces care a durat aproximativ șase luni.
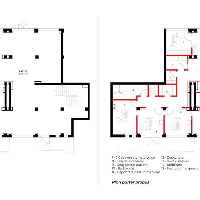
Provocarea majoră în procesul de proiectare a fost un zid structural de beton armat, aflat în centrul spațiului. Deși inițial speram să-l putem demola pentru a eficientiza circulațiile, expertiza tehnică confirmat imposibilitatea acestui lucru. Astfel, întreaga compartimentare a fost regândită în jurul acestui element fix.
La parter sunt organizate toate funcțiunile cu acces public – 7 cabinete, radiologia, zona de așteptare, grupuri sanitare și spații tehnice. Etajul e dedicat exclusiv personalului: vestiare, laboratorul de tehnică dentară, birou și zonă de relaxare.
După finalizarea compartimentării, am obținut toate avizele necesare – inclusiv de la DSP – și ulterior Autorizația de construire.
Design calm și luminos
Ne-am dorit un spațiu prietenos, cald și echilibrat, care să reducă anxietatea pacienților. Am folosit nuanțe de oliv, bej, texturi naturale și lemn de stejar, contrastate subtil cu sticlă, metal negru și beton aparent.
Toate cabinetele au uși vitrate înalte (280 cm), care lasă lumina să circule și facilitează orientarea pacienților. Grupul sanitar preia același limbaj vizual, cu nișe și detalii funcționale gândite special pentru această destinație.
Fiind o clădire din perioada comunistă, am păstrat o legătură discretă cu istoria locului: riflaje din lemn, suprafețe de beton texturat și sticlă, reinterpretate într-un limbaj contemporan.
Rezultatul este un spațiu clar, calm și funcțional – o clinică medicală în care designul contribuie activ la confortul și încrederea celor care o trec pragul.



































